About Cloud9 Architect
Projects
GWANAK Culture Welfare Town [F]
BUSAN Smart Fish Farm [F]
BORYEONG Light Stone Park
ANYANG INDEOGWON Compactcity Design Competition
GAPYEONG Mocha House
PAJU Community Mill
SOKCHO Seolak High School [A]
SOKCHO Seolak High School [C]
JANGPYUNG Middle School [A]
JANGPYUNG Middle School [C]
GANGWON Special Education Center [A]
GANGWON Special Education Center [C]
CHUNCHEON Hanssem High School
YOUNGJU Vitality Center
SEOUL FOREST Park Management Office
SEOUL Integrated Online School
SEOCHO Seniors Care Center
YEJANG CUBE-SUGAR Housing
GAEPO Park Public Lavatory
DONGSUNG Creamson Father Coffee
GWANAK Culture Welfare Town [A]
GWANAK Culture Welfare Town [C]
SONGPA Public Housing Design Competition -1
SONGPA Public Housing Design Competition-2
BUSAN Smart Fish Farm [A]
BUSAN Smart Fish Farm [C]
INCHEON CREAM House
AHYEON Sharehouse 'Woasis'
YONGSAN 'FLOBLANC' Gallery
GAYANG Travel Library
SONGDO K-BIO Lab Hub
HWASEONG Silver Dream Center
INCHEON PARK 6 PUBLIC LAVATORY
AMSA History Park Heritage Pavilion
SEODAEMUN KIUM Daycare Center 10
LOTTE+KAIST Design Center
GUSAN Elementary School
SONGPA PET House
JINJU Sangsang Remake-center
GEOCHANG Agricultural Worker Dormitory
PUNGNAP STONEWALL House
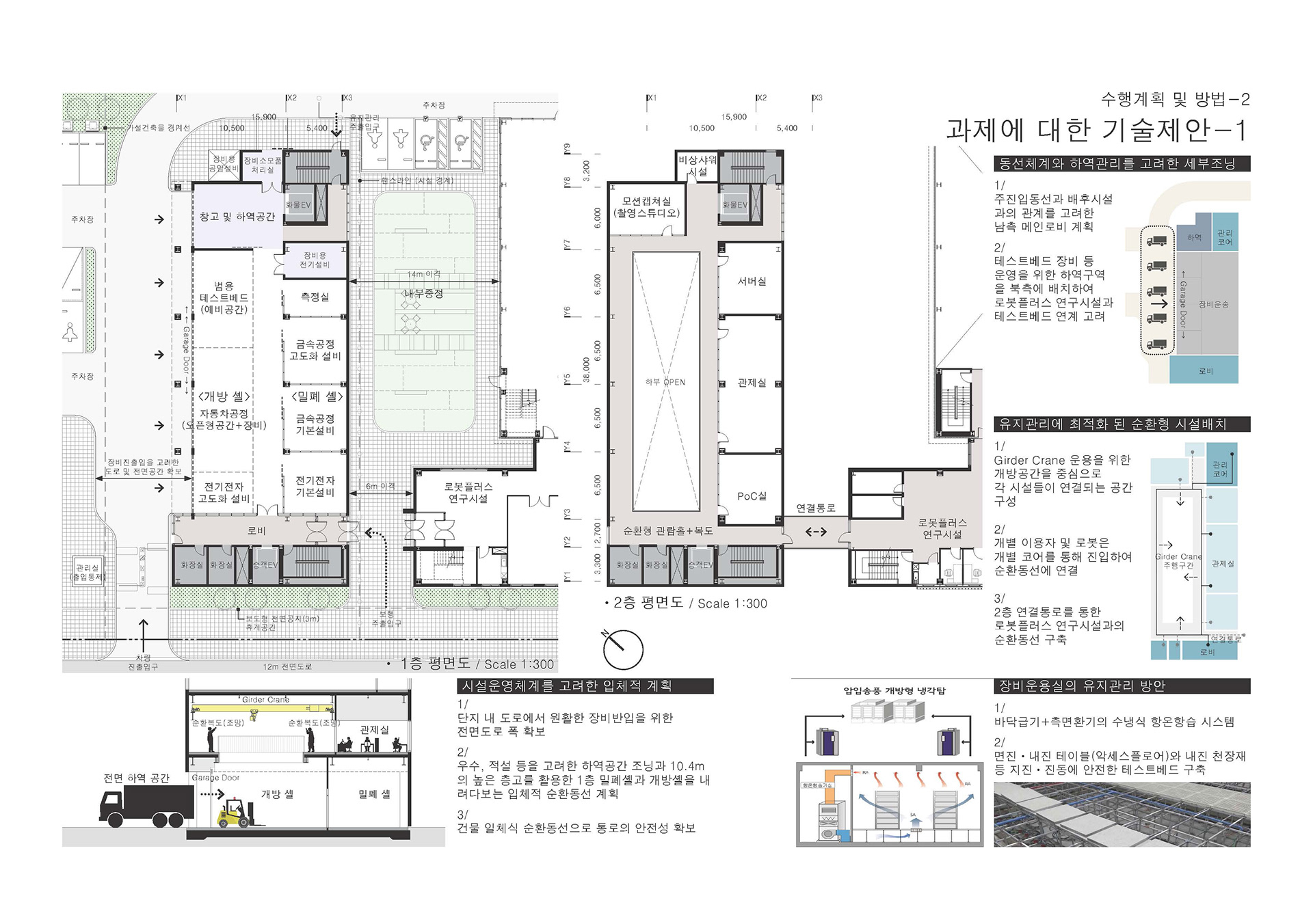
SUSEO Robot Laboratory
WANGSUK S-17 Apartment
DONGJAK Lotus Daycare Center
POCHEON Business Center
MODO NET House
GURO MAROON House
SEOCHO Giving Library
HYANGNAM Community Center
GOYANG Public Library
INWANGSAN ORANGE House
GONJIAM DOZA Atelier Trail
DEACHI Masil
YONGSAN H:118 House
YANGPYEONG RED House
PAJU BLACK House
JEJU SARA Officetel
DONGTAN Muitiplex Houing 'SALTER'
INCHEON Park 4 Public Lavatory
SEOCHO Park Public Lavatory
SINCHON Main-street Masterplan
SEOUL Innovationpark Reserch
YEOSU Cafe 'Siesta de street 1984'
ILSAN WHITE House
PYEONGTAEK LK MAKITA Warehouse
ICHEON DOZAGI Culture Center
ANYANG APAP5 Sketepark
SEOCHO Multiplex Housing
BUKSUWON Youth Center
GONGNEUNG Office
KUDA Community Forum
Incheon National University Masterplan
Symbiosis City : Pusan Jingu
ILSAN SHAREHOUSE 'CLOUD9'
YANGYANG Sports Center
HAPPYHOUSE Competition
Crimea Smart City
Waterprint City
Harvesting Infrastructure
Neutral Landscape
Multi-Layered Topography
Ghost in the Mirror
About Cloud9 Architect
Projects
GWANAK Culture Welfare Town [F]
BUSAN Smart Fish Farm [F]
BORYEONG Light Stone Park
ANYANG INDEOGWON Compactcity Design Competition
GAPYEONG Mocha House
PAJU Community Mill
SOKCHO Seolak High School [A]
SOKCHO Seolak High School [C]
JANGPYUNG Middle School [A]
JANGPYUNG Middle School [C]
GANGWON Special Education Center [A]
GANGWON Special Education Center [C]
CHUNCHEON Hanssem High School
YOUNGJU Vitality Center
SEOUL FOREST Park Management Office
SEOUL Integrated Online School
SEOCHO Seniors Care Center
YEJANG CUBE-SUGAR Housing
GAEPO Park Public Lavatory
DONGSUNG Creamson Father Coffee
GWANAK Culture Welfare Town [A]
GWANAK Culture Welfare Town [C]
SONGPA Public Housing Design Competition -1
SONGPA Public Housing Design Competition-2
BUSAN Smart Fish Farm [A]
BUSAN Smart Fish Farm [C]
INCHEON CREAM House
AHYEON Sharehouse 'Woasis'
YONGSAN 'FLOBLANC' Gallery
GAYANG Travel Library
SONGDO K-BIO Lab Hub
HWASEONG Silver Dream Center
INCHEON PARK 6 PUBLIC LAVATORY
AMSA History Park Heritage Pavilion
SEODAEMUN KIUM Daycare Center 10
LOTTE+KAIST Design Center
GUSAN Elementary School
SONGPA PET House
JINJU Sangsang Remake-center
GEOCHANG Agricultural Worker Dormitory
PUNGNAP STONEWALL House
SUSEO Robot Laboratory
WANGSUK S-17 Apartment
DONGJAK Lotus Daycare Center
POCHEON Business Center
MODO NET House
GURO MAROON House
SEOCHO Giving Library
HYANGNAM Community Center
GOYANG Public Library
INWANGSAN ORANGE House
GONJIAM DOZA Atelier Trail
DEACHI Masil
YONGSAN H:118 House
YANGPYEONG RED House
PAJU BLACK House
JEJU SARA Officetel
DONGTAN Muitiplex Houing 'SALTER'
INCHEON Park 4 Public Lavatory
SEOCHO Park Public Lavatory
SINCHON Main-street Masterplan
SEOUL Innovationpark Reserch
YEOSU Cafe 'Siesta de street 1984'
ILSAN WHITE House
PYEONGTAEK LK MAKITA Warehouse
ICHEON DOZAGI Culture Center
ANYANG APAP5 Sketepark
SEOCHO Multiplex Housing
BUKSUWON Youth Center
GONGNEUNG Office
KUDA Community Forum
Incheon National University Masterplan
Symbiosis City : Pusan Jingu
ILSAN SHAREHOUSE 'CLOUD9'
YANGYANG Sports Center
HAPPYHOUSE Competition
Crimea Smart City
Waterprint City
Harvesting Infrastructure
Neutral Landscape
Multi-Layered Topography
Ghost in the Mirror
SUSEO Robot Laboratory
C022020 마이스터 로봇화 연구시설 신축 공사 설계공모 [2nd]
↑
Back to Top