30평이 안되는 좁은 면적 안에 30년 넘은 무허가 노후주택 필지를 매입한 건축주는
직접 운영하는 까페와 주거가 결합된 작지만 알찬 주택을 신축하고자 하였다.
대지가 접하고 있는 도로는 2m 내외로 차량 진입이 불가하고 도로 확폭 및 정북일조 등
제약조건이 많은 땅이라 그동안 무허가 상태로 방치되었다.
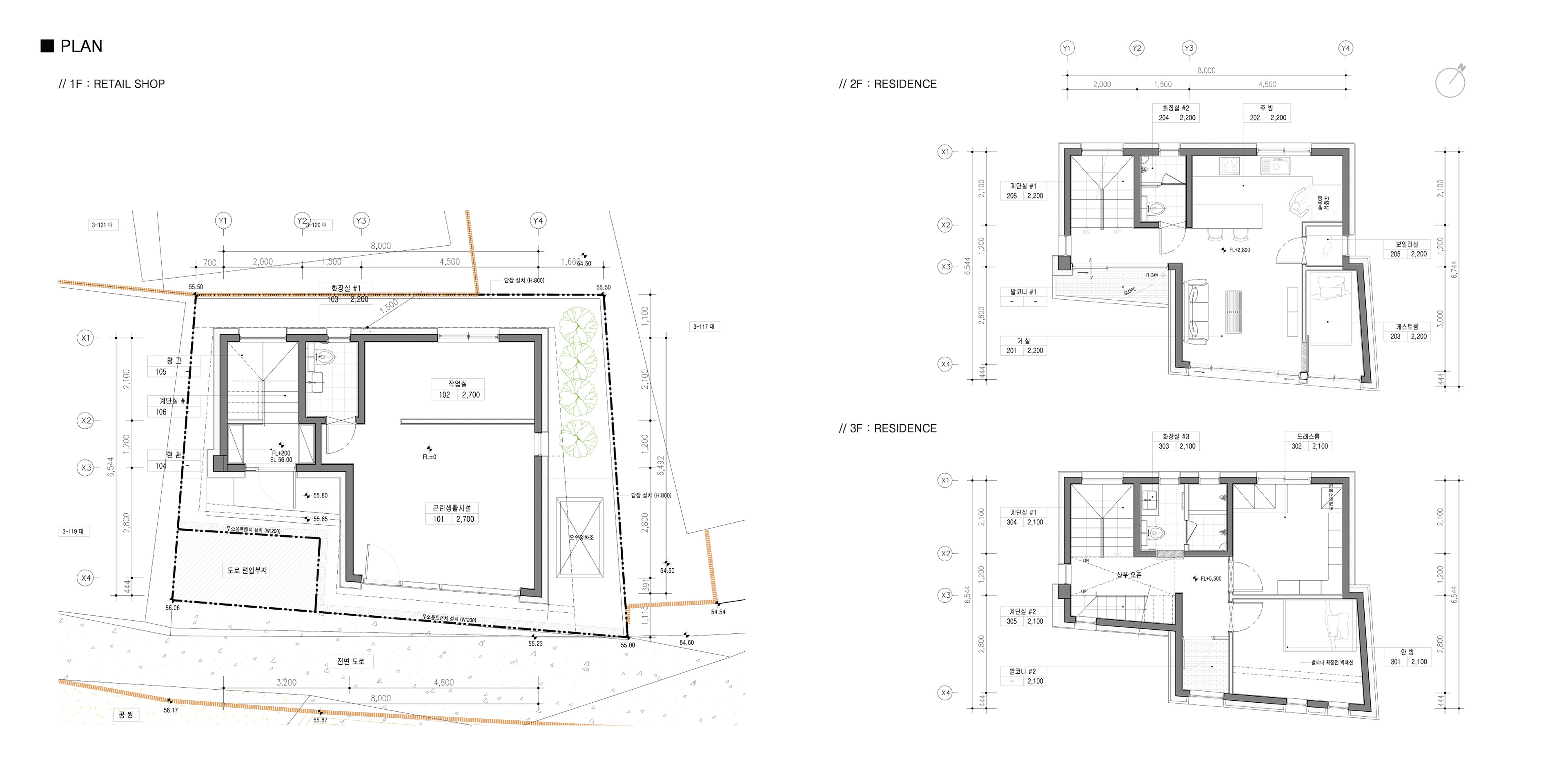
오랜 인허가와 공사 끝에 완공된 협소주택은 1층에 까페, 2~3층은 주거, 옥상에는 다락과 넓은 테라스까지 계획하였다.
남산을 조망하는 수평창, 다락 계단의 천창, 포켓 발코니 등 세심히 설계된 개구부 계획을 통해
좁은 공간의 채광과 개방감을 확보하였다.




















